Renson THL100
Download hier de brochure van de THL100:
Brochure THL100
Heeft u vragen over dit ventilatierooster of wenst u een bestelling te plaatsen?
Wij helpen u graag per telefoon 0418 638 980 of via email [email protected].
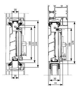
INSTALLATIE OP GLAS OF MET KALFPLAATSING
THL100 of THL100V voor installatie op glas:
(glasdiktes 15, 20, 24, 28 mm)
THL100-TR of THL100V-TR voor kalfplaatsing:
(glasdikte 20, 24, 28 mm)
THERMISCH ONDERBROKEN
Geen koude-overdracht van buiten naar binnen.
INSECTENWEREND
Dankzij het geïntegreerde insectengaas worden ongewenste insecten buiten gehouden.
LAMELLEN AAN DE BUITENZIJDE, SCHUIVER AAN DE BINNENZIJDE
